Sitzung läuft ab

Die Sitzung endet in Sekunden.

Town-Häuser Seeweg 3

Seeweg 3a

Mietdetails im Überblick

Wohnfläche 178 qm
Anzahl Zimmer 5
Anzahl Balkone 1
Anzahl Terrassen 1
Gartenanteil inkl. Terrassen 44,81 qm
Anzahl Kellerräume 3
Fläche Kellerräume 40,78 qm
Stellplatz oberirdisch 1
Stellplatz Tiefgarage optional

Angaben zum Energieausweis

Art des Energieausweises vorläufiger Energiebedarfsausweis vom 04.04.2025
Energiebedarf 9,5 kWh/(qm*a)
Heizungsart Sole-Wasser-Wärmepumpe
wesentlicher Energieträger Strom-Mix
Energieeffizenzklasse A+
Baujahr 2025

Miete Townhaus & Stellplatz

Kaltmiete Townhaus 1.958,- EUR/Monat
Miete Stellplatz Oberirdisch 80,- EUR/Monat
Miete Stellplatz Tiefgarage 80,- EUR/Monat (optional)
Nebenkostenvorauszahlung 445,- EUR/Monat
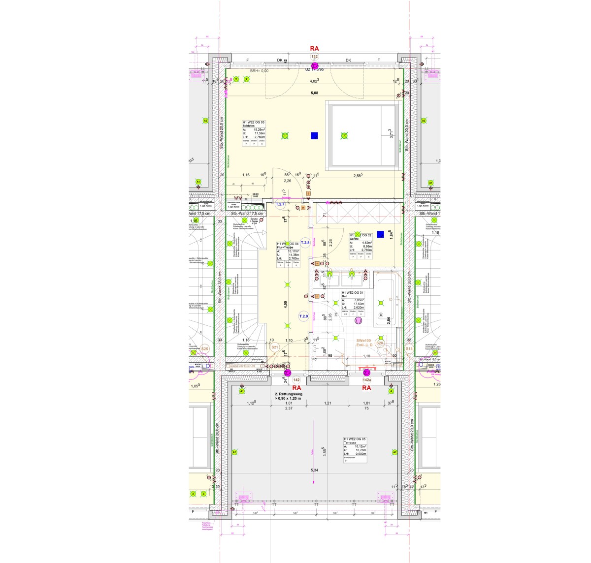
Town-Haus-Seeweg-3a-EG-m.-Außenanlagen-u.-Bezeichnungen

Beschreibung

Einen Überblick über die Ausstattungsmerkmale alle Mieteiheiten erhalten sie unter dem Titel „Ausstattung“. Nachfolgend werden die Besonderheiten dieser einzelnen Einheit dargestellt.
 

Jedes Town-Haus fügt sich mit Besonderheiten in das Gesamtkonzept aus Architektur und Ausstattung ein - hier sind es diese Highlights: 

  • Terrasse im begrünten Innenhof mit Markisenmontagepunkten
  • ca. 28 qm private Grün- und Gartenflächen mit Außenwasserhahn
  • große, loggiaähnliche nach Süd-Westen ausgerichtete Dachterrasse
  • 2 Bäder
  • Bad im 2. OG als Tageslicht-Bad mit Dusche und Badewanne
  • unverbaubarer Ausblick auf den Heidenturm
  • gemauerter Abstellbereich für eigene Mülltonnen
  • separater Abstell-/Geräteraum im 2. OG
  • großer Keller mit Cat. 6a-Datenanschlussdosen

Haben wir Ihr Interesse geweckt? Dann schicken Sie uns bitte eine ausführliche Bewerbung an vermietung@boergel.deund geben Sie an, für welche Wohnungen Sie sich interessieren.

Weitere Bilder
Town-Haus Seeweg 3a- KG-2.OG - Grundrisse nebeneinander - o. Außenanlagen Town-Haus-Seeweg-3a-EG-m.-Außenanlagen-u.-Bezeichnungen Town-Haus Seeweg-3a 1.OG Town-Haus-Seeweg-3a 2.OG Town-Haus Seeweg 3a - KG Detailansicht Town-Haus Seeweg-3a EG Detailansicht Town-Haus Seeweg-3a 1.OG Detailansicht Town-Haus Seeweg-3a 2.OG Detailansicht Town-Haus Seeweg-3a Keller

Weitere Objekte