
08.11.2024
Unterfangung im Bestand in Marl
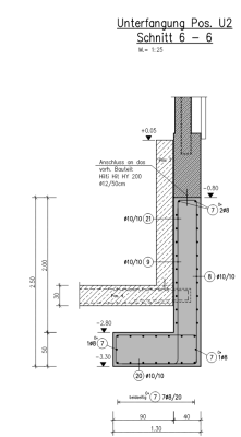
Für ein Entsorgungsunternehmen in Marl haben wir eine anspruchsvolle Unterfangung durchgeführt.
Ziel: Die Herstellung einer Grube für die Aufstellung neuer Anlagentechnik!
Dank unserer erfahrenen Teams und modernster Technik konnten wir die Arbeiten im Bestand präzise und sicher ausführen. Ein weiterer Schritt in Richtung nachhaltige Entsorgungslösungen!
Zurück
Ziel: Die Herstellung einer Grube für die Aufstellung neuer Anlagentechnik!
Dank unserer erfahrenen Teams und modernster Technik konnten wir die Arbeiten im Bestand präzise und sicher ausführen. Ein weiterer Schritt in Richtung nachhaltige Entsorgungslösungen!